联系我们
地 址:上海浦东新区济阳路1998号
邮 编:200124
联系人:石先生
手 机:13003227845
网 址:www.rui-dong.com
邮 箱:13003227845@163.com
地 址:上海浦东新区济阳路1998号
邮 编:200124
联系人:石先生
手 机:13003227845
网 址:www.rui-dong.com
邮 箱:13003227845@163.com

| 区域 | 面积(m2) | 内机型号 | 室外机型号 | 
| 客厅 | 20 | CDXLS45DV2C | LMXS4DMV2C | 
| 餐厅 | 10 | CDXLS28EV2C | |
| 主卧室 | 13.6 | CDXLS36EV2C | |
| 次卧室 | 11.6 | CDXLS28EV2C | 
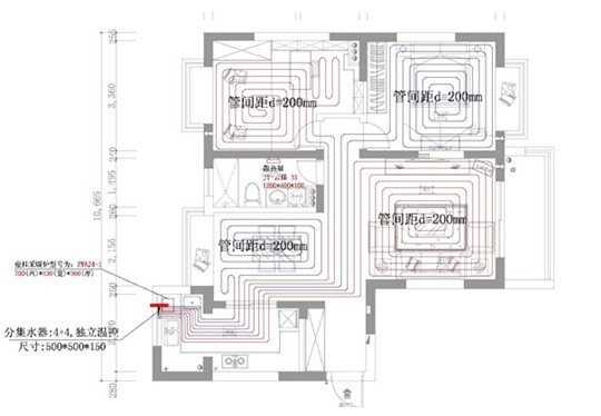
中央水采暖方案:地暖实铺面积约74m2为美国威玛18KW双供暖燃气壁挂炉,150升生活热水水箱,丹麦格兰富循环水泵,海林集分水器及温控器,乔治费歇尔地暖盘管,嘉泰散热器,美尔固主管道及配件。

| 主设备 | 品牌 | 型号 | 
| 壁挂双供暖采暖炉(18KW) | 美国威玛 | EP18-BS | 
| 生活热水恒温储水箱(150L) | 美国威玛 | E-Plus 40 | 
| 热水循环水泵 | 丹麦格兰富 | UPS 25-40B | 
| 分水器 | 北京海林 | 黄铜合金5+5分水器 | 
| 采暖管道 | 上海乔治费歇尔 | 耐热聚乙烯PE-RT 12/16 | 
| 一周时间编程液晶温控器 | 北京海林 | RTC89(触摸屏) | 
| 嘉泰散热器 | 北京嘉泰 | 50YGZB-2系列 | 
方案评价:业主本来是想选购一套大金一拖五的中央空调,同时为了有充足的热水,想在主卫单独安装1台史密斯190L热水器,厨房和次卫用18L燃气热水器解决,当我们分析完房型,发现客餐厅比较工整,可以用1台3P机来解决。生活热水方面我们提出壁挂炉带水箱的方案,同时2个卫生间采用卫浴型散热器片,解决了冬天卫生间阴冷的问题,也省却了2台浴霸的安装,总体预算和以前差不多,但起到的舒适性却更为合理,业主也很满意。
